Nos avis clients
Nos avis clients
0

TERRAIN CONSTRUCTIBLE 4 202 M² ENV A VENDRE SUR PEYNIER

Peynier (13790)
Réf : 2021225

Terrain constructible a vendre sur Peynier, à 15 minutes d'Aix en Provence, à 1 Km du village et des écoles, accès facile technopôle de Rousset.


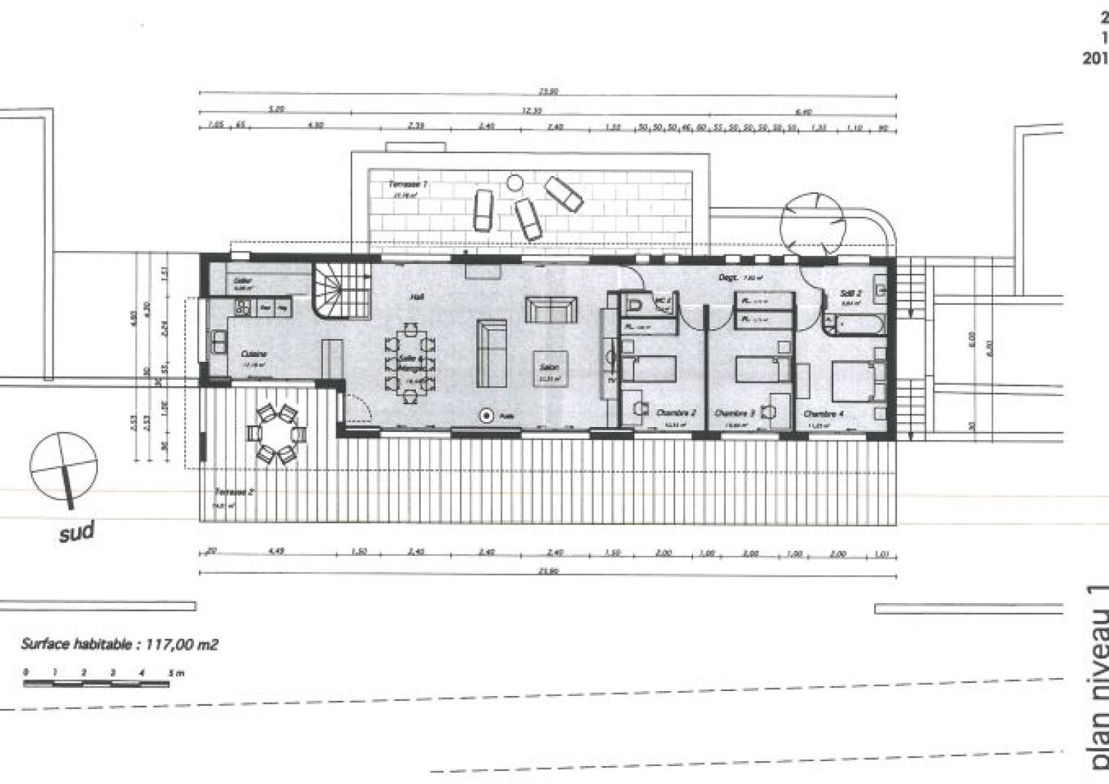
Terrain de 4 202 m² en restanques, arboré de pins avec belle vue sur la Sainte Victoire, a vendre avec un projet de construction accordé et purgé de tout recours pour une maison d'une surface de plancher de 156 m² sur 2 niveaux avec garage et terrasse, soit 142 m² habitable avec 4 chambres. Viabilités en bordure. Prix du terrain seul sans la construction. Bien non soumis au DPE. Mandat 2021225CF. FAI. Honoraires à la charge du vendeur.


Ce bien vous est proposé par l'agence CRYZA Immobilier By Céline Faye AIX EN PROVENCE - LES MILLES

Céline FAYE MALAQUIN EI - Agent commercial - RSAC Aix en Provence - N° 392 855 482

46 Avenue Roger Chaudon, 13290 Aix en Provence - Les Milles


Contact au 04.42.20.51.51


www.cryzaimmobilier.com


Les informations sur les risques auxquels ce bien est exposé sont disponibles sur le site Géorisques

En Bref

Code postal 13790
surface terrain 4 202 m²
Vue dégagée et pins
Terrain constructible OUI
Exposition Sud
Terrain Viabilisé NON
Raccordement eau OUI
Raccordement électricité OUI
Raccordement téléphone OUI

Infos financières

Les honoraires d'agence seront intégralement à la charge du vendeur  
Ces biens peuvent vous intéresser