Nos avis clients
Nos avis clients
0
7 Pièce(s)
5 Chambre(s)

MAISON T7 AVEC 2 LOGEMENTS ET ANNEXES A VENDRE SUR MEYRARGUES

Meyrargues (13650)
Réf : 2021209

Maison T7 avec 2 logements et de nombreux garages a vendre sur Meyrargues, à 10 min au nord d’Aix en Provence.


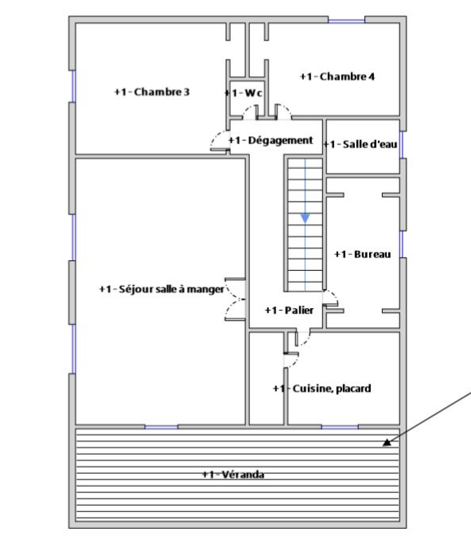
Cette maison T7 d'env 160 m², a vendre dans la campagne du charmant village de Meyrargues, se compose de 2 logements.

Au rdc : 1 logement de type 3 d'env 70 m² habitables comprenant un séjour, une cuisine indépendante, 2 chambres, une salle d’eau, une terrasse couverte ainsi qu’un garage de 22 m².

Au 1er étage : 1 logement de type 4 d'env 90 m² habitables + 20 m² de véranda comprenant un séjour, une cuisine indépendante, 3 chambres et une salle d'eau.

De nombreux garages pour une surface de plus de 200 m² complètent ce bien. Possibilité de réunir les 2 logements pour faire une seule habitation.

Le terrain, en zone agricole, d'une surface de plus de 8 000 m² comprend un espace jardin autour de la maison et une zone pouvant être cultivée. Une grande piscine à rénover agrémente cette parcelle. Prévoir travaux de rafraichissements pour ce bien à fort potentiel. CLASSE ENERGIE : E et CLASSE CLIMAT : D. Mandat 2021209CZ. FAI. Honoraires à la charge du vendeur.


Ce bien vous est proposé par l'agence CRYZA Immobilier PEYROLLES EN PROVENCE - LUBERON

755 H Avenue Charles de Gaulle, 13860 Peyrolles en Provence.


Contact au 04.42.69.32.24


www.cryzaimmobilier.com


Les informations sur les risques auxquels ce bien est exposé sont disponibles sur le site Géorisques

En Bref

Code postal 13650
Surface habitable (m²) 160 m²
surface terrain 8 121 m²
Nombre de chambre(s) 5
Nombre de pièces 7
Etage 1
Nb de salle d'eau 2
Mode de chauffage Gaz
Type de chauffage Radiateur
Format de chauffage Central
Terrasse OUI
Nombre de garage 5
Cave OUI
Surface cave (m²) 9.99
Exposition Sud
Année de construction 1964
Terrain piscinable OUI
Terrain arboré OUI

Infos financières

Les honoraires d'agence seront intégralement à la charge du vendeur  
Ces biens peuvent vous intéresser