Nos avis clients
Nos avis clients
0

TERRAIN CONSTRUCTIBLE 650 M² ENV A VENDRE SUR VENTABREN

Ventabren (13122)
Réf : 2021145

Terrain constructible a vendre sur Ventabren, en campagne, à 10 min d'Aix en Provence, proche des bus scolaires, à quelques min de la gare TGV.


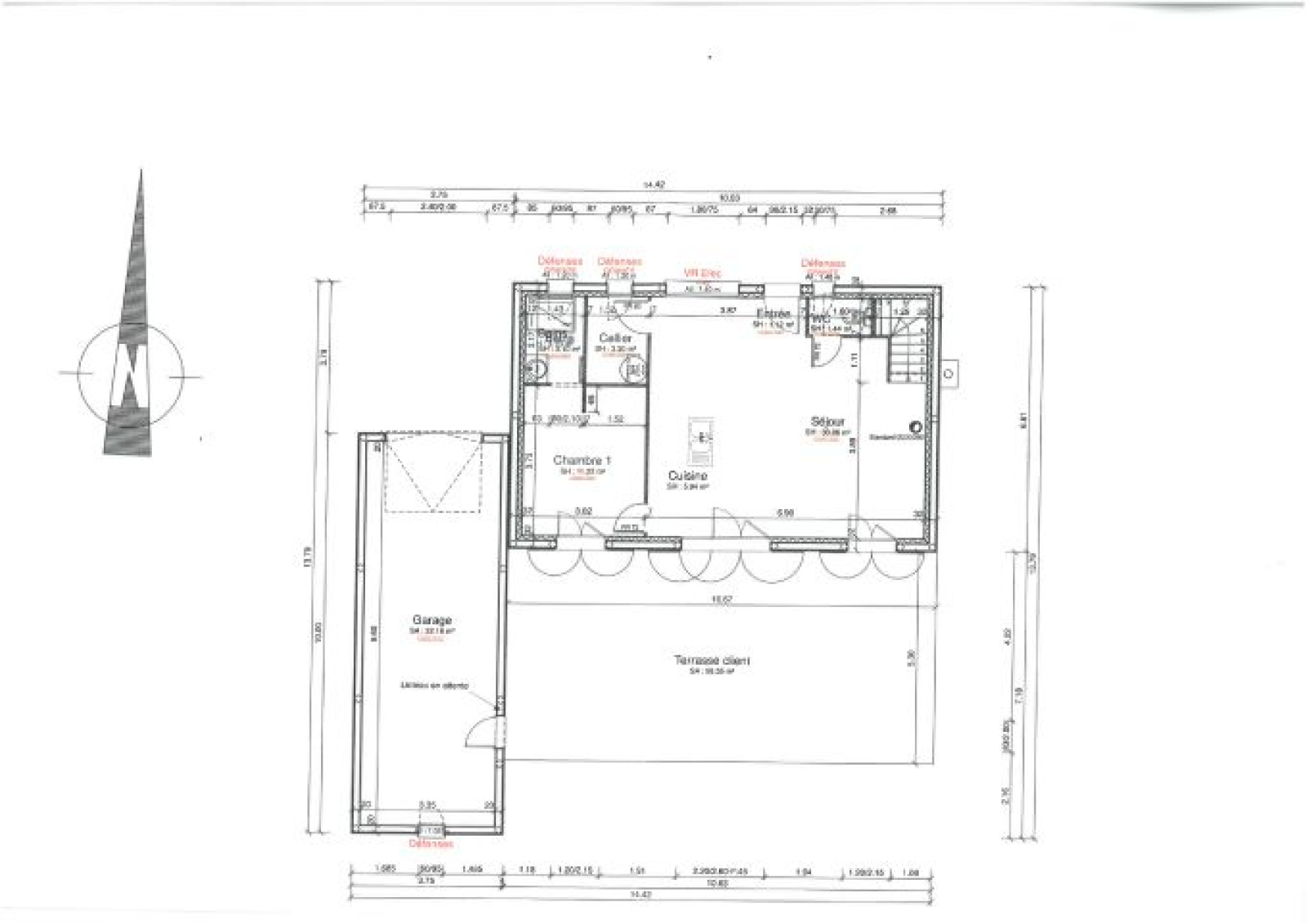
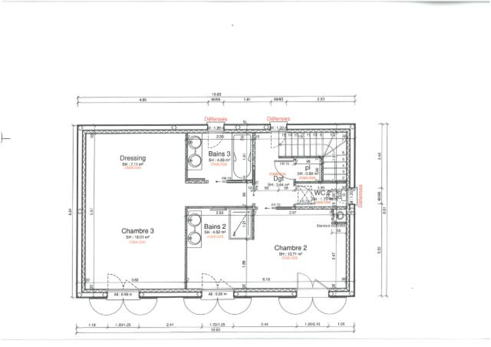
Ce terrain constructible de 650 m², a vendre sur le charmant village de Ventabren, avec projet de construction accepté et purgé de tout recours pour une surface de 113,36 m² sur 2 niveaux avec une suite parentale en rez-de-chaussée et 32 m² de garage. Viabilités en bordure du terrain. Vue très agréable sur la campagne et verdure. Bien non soumis au DPE. 2 études de sol déjà réalisées. Mandat 2021145CF. FAI. Honoraires à la charge de l'acquéreur 3,12%.


Ce bien vous est proposé par l'agence CRYZA Immobilier By Céline Faye AIX EN PROVENCE - LES MILLES

Céline FAYE MALAQUIN EI - Agent commercial - RSAC Aix en Provence - N° 392 855 482

46 Avenue Roger Chaudon, 13290 Aix en Provence - Les Milles


Contact au 04.42.20.51.51


www.cryzaimmobilier.com


Les informations sur les risques auxquels ce bien est exposé sont disponibles sur le site Géorisques

En Bref

Code postal 13122
surface terrain 650 m²
Vue dégagée, campagne
Terrain constructible OUI
Surface constructible 113.36
Exposition Sud
Raccordement eau OUI
Raccordement électricité OUI
Raccordement téléphone OUI
Ces biens peuvent vous intéresser